{{selectedProduct.content}}
{{selectedProduct.description}}
国土交通省では令和5年度よりBIM/CIM原則適用となり今後は3次元設計、BIM/CIM積算の実現へと舵を進めています。
弊社でも新たな取り組みとして「下水道管路事業における三次元データの利活用への取り組み」という形で3次元設計の検討を始めています。
処理の高速化により、事業計画の見直しなどの広大な範囲の設計も可能になりました。
※弊社実績では、26,000路線・総延長1,270km・面積6,000haのデータでも問題なく動作することを実証済み。

保守専用ホームページからダウンロードしていただける[Pipe 3D]をインストールし、新規に追加された[Pipe 3D出力]コマンドの起動により、管路・人孔・取付管・地下埋設物などが、Pipe Rapidの設計データから直接、ビジュアル効果に優れた3次元画像として表示することが可能になりました。
※Pipe 3Dにつきましては、保守加入期間のみ動作致します。

経年劣化や震災などで発生した管路のたるみ・蛇行,クラック・破損・変形・継手ズレ・取付管突出・付着・侵入などによる損傷,硫化水素ガスに起因する腐食などの調査結果を設定して、長寿命化や災害評価・対策図面として表現することが可能になりました。

平面図に登録されている区画割要素の最大範囲により、流域要素を自動作成することが可能になりました。

平面図に作図されている路線、地区外路線、流末路線に対して、ネットワークの整合性を事前に確認することが可能になりました。また、接続タイプが[路線]に設定されている取付管に対して、路線または流末路線への接続の整合性を事前に確認することも可能になりました。


路線検索,取付管検索,路線平面要素検索時において、これまでのモーダルダイアログからモードレスダイアログに変更しました。これにより、一度開いた検索のダイアログボックスを閉じなくても、連続して他の操作が実行できるようになり、快適な操作性を実現できるようになりました。

平面図内の既存の路線要素を[スパン指定]・[路線指定]・[連続指定]の各モードにより参照し、簡単に、起点が兼用人孔のサービス管路線を作成することが可能になりました。

標高点を作図する各情報(測点名称・座標・地盤高・標高点タイプ・地盤高種別タイプ)を一覧に入力、またはCSVファイル・SIMAファイルからインポートし、一括で作成することが可能になりました。

[Civil Plaza出力]コマンドの追加により、弊社の構造解析系アプリケーションと連動し、Pipe Rapidが平面図内に保持している基礎データの出力が可能になりました。(2010年12月現在では『管の構造計算』に対応。)

[管渠概算工事費]コマンドの追加により、管種・管径・土被り・工法ごとに設定された単価を参照し、平面図内に作成された路線の概算工事費の算出が可能になりました。(結果はExcelに出力することも可能です。)
※Excel2003/2007に対応

[管路詳細図作成]コマンドの追加により、平面図内に作成された路線・マンホール・取付管・桝・地下埋設物の詳細形状の作図が可能になりました。

平面図内に土質情報を設定し作成したボーリング配置点をエクスポートし、縦断図に土質柱状図を自動作図することが可能になりました。

平面図内に作成された取付管を指定し、屋外排水管,および取付管の桝深決定根拠や、埋設物横断,地盤変化点による影響などを調書としてExcel出力することが可能になりました。
※Excel2003/2007に対応

矩形または条段形状地下埋設物の幅を考慮し、埋設物端部で本管や取付管とのクリアランスを確保することも可能になりました。


従来から有る路線横断図作成機能に加え、平面図内の路線を指定することで、スパンの中間位置,人孔からの指定距離位置,および任意位置の横断図を表示(作図)する機能を追加し、埋設物との近接状況などを簡単に確認することが可能になりました。

雨水流出解析ソフト「InfoWorks」においてインポートすることが可能なシェープファイル(SHP)を出力することが可能になりました。

従来から有る標高点作成・編集機能に加え、平面図内に、二点間範囲で標高を管理する標高線,およびポリゴン範囲で標高を管理する標高面の作成・編集を行い、標高線では地盤変化点を また標高面では地盤点・宅地地盤点をそこから取得することが可能になりました。

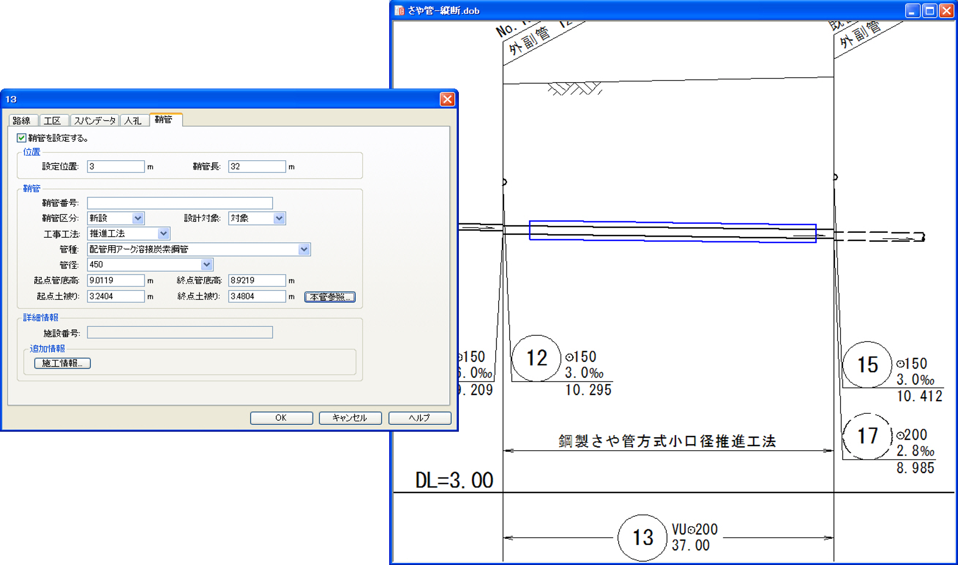
路線単位でさや管を設定し、縦断図にも作図することが可能になりました。
さや管の深度位置については、本管位置を参照し中心配置することも可能です。

路線平面系統図内において、路線要素,取付管・屋外排水管要素,および埋設管要素を取得して、一覧入力・編集することが可能になりました。

路線平面図内に使用している管路記号や、人孔記号などの凡例表を自動作成することが可能になりました。


平面図内の埋設物形状(種別・区分・形状・幅・高さ・管厚)が同じで、端点接合された2つの埋設管要素の結合や、折れ点を含む1つの埋設管要素を指定した折れ点位置で2つに分解することが可能になりました。

真空式下水道での平面計画,縦断計画,および圧力損失計算が可能になりました。

縦断図内に切出し平面図を自動挿入する時に追加挿入できる方位記号について、平面図の垂直軸が北向きではなく角度を持っている場合についても、その角度に対応した自動挿入が可能になりました。

測量データ(SIMAデータ)からの読み込みによる路線平面図新規作成時の取付管データの作成タイプとして、これまでの接続タイプが「路線」の取付管要素に加え、接続タイプが「桝引き」の取付管要素,および屋外排水管要素についても自動作成が可能になりました。

平面図内に作成された路線,および取付管関連の番号を一括で変更する場合に、変更対象となる条件指定により、適合した路線や取付管のみを対象とした変更を行うことが可能になりました。



平面図内の路線,および取付管要素に設定された施設番号による検索が可能になりました。
また検出した要素を中心とする移動表示が自動で行われます。


指定境界要素に対して直角に人孔施設オフセットを作成することが可能になりました。


縦断図や構造図のツリービュー上での順番が、【↑上へ移動】,および【↓下へ移動】ボタン操作により、変更管理することが可能になりました。

始点および終点の途中に、曲線または折れ点を有する1スパンの路線要素の作成,編集および情報確認が可能になりました。

平面縦断図に自動的に切出し挿入された路線平面図に対して、設定された形状および配置位置に、方位記号を自動挿入する機能が追加されました。

本管の縦断図内に、本管と地下埋設物との離隔,本管と地盤変化点との離隔,および本管とクロス管との離隔を寸法として作図する機能を追加しました。
また、取付管の縦断図内に、取付管と地下埋設物との離隔,および取付管と地盤変化点との離隔を寸法として作図する機能が追加されました。

縦断図の割付において、プロジェクトをまたがった縦断図の割付ができるようになりました。
また、一度割付を行なった縦断図内の割付の順番を変更する機能も追加されました。


縦断図作図の際のクロス管旗上において、従来はツリーの下部のプロジェクトの縦断図のみにクロス管旗上が可能でしたが、バージョンアップにより、どちらのプロジェクトからでもクロス管旗上することが可能になりました。

これまで別オプション(\315,000(税込み))であった〔構造図作成システム〕が、〔路線平面系統作成システム(オプション)〕に統合されました。これにより〔路線平面系統作成システム(オプション)〕を所有されている場合、バージョンアップにより『構造図』『仮設土留工』および、【加工図】コマンド,【鉄筋表】コマンドを含んだ『配筋加工図』の各コマンドをご使用いただけるようになりました。

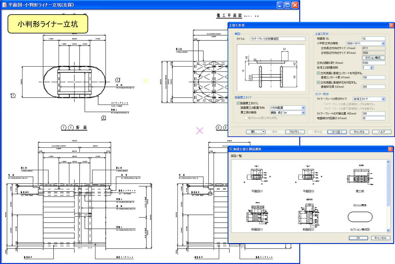
〔路線平面系統作成システム(オプション)〕に、これまでCivil Rapidにしか搭載されていなかった仮設図の自動作図機能が搭載されました。これによりPipe Rapid上でも『鋼矢板立坑』および『鋼矢板開削土留工』、さらに今回のバージョンアップにより、新機能である『円形ライナー立坑』および『小判形ライナー立坑』がウィザード形式により自動作図できるようになりました。


画地要素の作成および面積計算法(三斜法・ヘロン法)による三角形分割を行ない、画地の情報(地番名称・測点名称・測点記号など)および分割した三角形の情報を設定できるようになりました。
また、面積集計表の作成も自動で行なえるようになりました。


Ver5からある屋外配水管要素作成時のオフセット機能が、『路線』『地区外路線』『流末路線』『取付管』『埋設管』『標高点』の各要素作成・編集時にもご利用いただけるようになりました。

平面図において、注記タイプ(注記表記・注釈表記)の埋設管要素を描画する際に、作成方向(始点から終点方向)を確認する事が出来るように、終点に矢印を描画する機能を追加しました。

【流量計算実行】コマンド、または【取付管縦断計画実行】コマンドにより、取付管および屋外排水管の縦断計画を行う場合、固定されていない桝の現況地盤高および計画地盤高を自動設定する機能を追加しました。
桝の地盤高が未調査の仮縦断計画時などにおいて、上・下流マンホールから加重平均された本管接続位置の地盤高を、桝地盤高として設定できるようになりました。

流量計算時の人孔番号自動付加機能が向上しました。
流量計算時に人孔番号を連続で自動付加する場合、下流から番号をカウントする機能を追加しました。
また、【人孔を設置しない】にチェックを入れている人孔の番号付加を省略し、カウントしない機能を追加しました。

平面図作成時の路線・人孔・取付管関連の番号自動付加機能が向上しました。 ※要〔路線平面系統作成システム〕
平面図上で、路線番号・人孔番号・取付管要素の番号を連続で自動変更する場合、下流から番号をカウントする機能を追加しました。
また、【人孔を設置しない】にチェックを入れている人孔の人孔番号の付加を省略し、カウントしない機能を追加しました。
さらに、人孔・取付管要素の番号変更の場合は、所属する路線要素に設定されている路線番号を先頭に接頭文字として変更する機能を追加しました。

平面図作成時の屋外排水管関連の番号自動付加機能が向上しました。 ※要〔屋外排水設備システム〕
路線の流下方法が『圧送』に設定されている場合、路線形状の勾配を各図面に作図する表記方法を設定できる機能を追加しました。

【流量計算】コマンドによる処理の実行時に、人孔にポンプアップ(揚水ポンプ)が設定された場合、設定された人孔の直下流のスパンの管渠の縦断計画のみを起点路線の1スパン目の縦断計画と同様な処理を行うことができる機能を追加しました。

『地盤変化点』『地下埋設物の交差』『表記旗上げ』『取付管の接続』『クロス管の交差』の各項目において、下流からの位置も作図できるようになりました。






属性検索時に、文字列や有限線などの対象要素を『要素スタイル』により指定してフィルタ検索を行う機能が追加されました。

【Back Space】キーによる、指定点・指定要素の解除や、ダイレクトキーによるコマンド内の各モードの自動起動を可能にしました。


【印刷】、【連続印刷】、【縦断図連続印刷】および【構造図連続印刷】コマンドの印刷時に、設定した『ヘッダー』および『フッター』を同時に印刷する機能を追加しました。

【レイヤ一覧】および【ページ一覧】ボタンを追加しました。
また、ページ一覧時に【属性変更】、【要素削除】および【ページ削除】ボタンを追加し、ページの属性情報の変更、ページ内の全ての要素の削除およびページの削除を行う機能を追加しました。



従来からある路線番号付加機能と同様に、人孔番号,桝名称,取付管番号および取付番号も、【単独変更】【連続変更】【一括変更】できるようになりました。

人孔や管渠のオフセット寸法および道路幅員の寸法が、対象要素を指定するだけで容易に作図できるようになりました。








【ページ属性編集】コマンドにより、ページ単位で『編集』『表示』『凍結』のレイヤタイプを設定することが可能になりました

現在作業している図面内レイヤ名称の責任主体を、要素が変更されたレイヤのみ変更することが可能になりました

印刷プレビューの背景色が印刷スタイルごとに設定可能になりました。
例えば、白黒印刷のプレビュー時に、作業画面の背景色が黒の場合でも任意の背景色を選定することにより、要素の確認ができます。

作業中の複数の図面を『sfc形式』『p21形式』『dxf形式』『dwg形式』の指定形式で、一括で外部出力することが可能になりました。

Pipe Rapidで扱うデータはデータベースとして出力することが可能ですので、データのオープン化が実現し、他のシステムでのデータ利用が可能になります。
PipeRapidでは、SXF入力および出力はもちろんのこと、DXF、DWGファイルなどの外部ファイルをサポートしております(複数のファイルを一括で出力することも可能です)。また、地形図データとして、数値地図、SIMA、DMファイル挿入(入力)、ラスタデータも対応しております。平面機能では、測量効果の現況および計画データを読み込み、自動作図することができます。
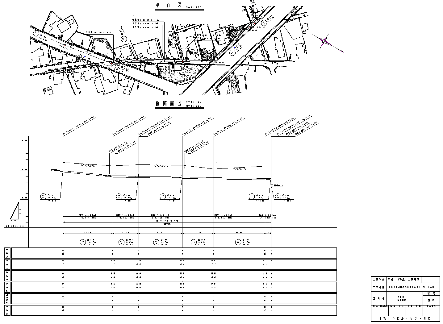
縦断図を作図する場合に、路線機能で作成した平面図を自動的に切り出して配置します。もちろん、切り出された平面図は文字や路線要素が途中で切断されるようなことはありません。また、再構築などで縦断図上に管路を2本作図したい場合にも、参照路線として縦断図に管路線を容易に作図することができます。(縦断図は、スパン単位で作図することができます。)
作成する流量表は、Microsoft ExcelのxlsファイルデータをVBA(Visual Basic for Application)により直接作成するため、作成された流量表の書式を自由に編集することができます。
また、流量表を作成する際に「出力設定、入力設定、桁処理設定、その他の設定」と各種設定項目による出力が可能になります。
流量表への出力は、計画された複数の路線からプロジェクトや工区ごとに任意に指定することができ、さらに新設・既設・計画・撤去・在置の区分を選択しての出力も可能です。
ご好評を頂いております当社土木用高機能低価格CAD「Rapid
Draw」の汎用CAD機能を標準搭載しており、面倒な編集作業を他のシステムで行う必要はありません。
※「Rapid Draw」の汎用CAD機能については、別途カタログをご覧下さい。
通常のCADで複数の図面を印刷する場合は、複数の図面ファイルを開いて各々の図面を一枚ずつ印刷指定の操作を行います。図面枚数が多くなればなるほど時間の要する作業となります。Pipe Rapidでは、そのような面倒な作業をすることなく、出力したい図面データを指定するだけで、連続してプリンタまたはプロッタに図面を出力することができます。(連続印刷機能はオプションで提供されているシステムが多い中、Pipe Rapidでは標準搭載されております。)
路線系統および、路線内の諸元(面積・路線距離・地盤高、地盤変化点、固定流入、地下埋設物、取付等)の入力と設定された各設計条件により、自動的に流量計算から管種・管径の決定、縦断計画まで行います。また同時に、掘削幅、管基礎、土留種類などを自動的に選択決定が可能ですので、縦断図や平面図に容易に寸法表示することもできます。
また、路線データの入力値により、平面図に取付桝や取付管を自動作図するなど、平面および縦断計画の整合性をはかりながらの設計・計画を実現しています。



平面機能は、計画設計・実行設計において一連の作業で行うことができるほか、仮縦断等の検討段階での作業も簡単に行えます。例えば路線平面を作図する必要がなくても、管網図的な平面作図を行うことで必要な路線データの入力に切り替えることができますので、仮縦断などの作成も容易にできます。
また、平面図から縦断データへのリンクもデータ項目ごとに設定することができ、変更したくないデータにリンクさせないことも可能です。
平面からリンクされたデータにて計算実行した後に、そのデータを平面図にインポートすることができます。
平面図の路線を指定するだけで縦断図を確認できたり、平面計画したスパン長が最大間隔を超える場合は、中間人孔を自動配置することもできます。
さらに、路線データで入力された取付け管データにより、平面図に取り付け管を自動作図することも可能です。
平面計画および縦断計画の終了後に、現況横断線を作図登録して平面図に配置点を指定することにより、自動的に現況横断図と計画管および埋設管の位置や深さを検出して横断図を作成いたしますので、変更があった場合にも簡単に作図しなおすことができます。
作図した区画割り要素と路線の関連付けを自動的に行い、どのような区画割りになっているかカラー表示することが可能です。
また、面積計算は各路線の排水面積を計算し、面積の固定をしている場合でも実測値との誤差を配分して計算することも可能です。
曲線や折れ点を有する路線にも対応しています。
これにより、曲線推進路線の設計や、平面上で本管と重複するサービス管をずらして表示するなどの作図も可能です。
路線・取付管記号の表示を[管路記号設定、勾配スケジュール、工区、土被り区分]などの多数の設定タイプにより線色の変更を行なうことができるため、目的に応じた路線平面図の表示が可能です。
新たに人孔を配置する場合や、既に配置した人孔の位置を変更する場合においてもオフセット機能を使えば簡単です。
指定した「点」や「直線」などを基としたオフセットにより位置指定や位置変更ができます。
また同様の操作で、距離指定や延長分解などによるスパンの作成や編集も可能です。
平面図の縮尺により、路線や取付管などの各種記号を非表示にしたり、縮小表示する描画機能を搭載しております。
これにより、1/500の実施設計図面から1/2,500の系統図や区画割施設平面図などの作成も容易にできます。
人孔や管渠のオフセット寸法および道路幅員の寸法を、人孔や路線などの要素を指定するだけで容易に作図することが可能です。
数量計算の設定で設定された条件で、平面図上に自動的に管基礎や山留め工の種類などが判定され、本管寸法設定での条件により路線(スパン)を選択するだけで、指定した寸法タイプ(管基礎、土留工、掘削タイプ、路面復旧工など)を容易に表示することができます。
※数量計算はオプション(オーダーシステム)ですが、数量表に出力する以外の上記のようのな作図に関するものは標準システムで動作いたします。
平面図内に配置点として登録した横断地形図から作成する路線横断図作成コマンドと、平面図内の路線を指定することで、スパンの中間位置,人孔からの指定距離位置,および任意位置の横断図を簡易に表示(作図)する横断表示コマンドを有し、計画管や埋設管の位置・深さの状況を作成・確認することができます。また横断図を作図する際に、掘削影響線や人孔躯体の簡易輪郭線を作図することも可能です。
平面図に地盤点,地盤変化点,および宅地地盤点を設定することにより、検出範囲内の点を自動取得し、縦断データの各値の入力を省略することができます。
標高要素としては一点の標高点,二点間範囲の標高線,およびポリゴン範囲の標高面が設定できます。
切り出し平面図が回転していても、注記文字に変換しておけば正常方向に回転します。
平面機能で作成した平面図に副管がある場合、副管記号を作図することができます。
平面図内に土質情報を設定し作成したボーリング配置点をエクスポートし、縦断図に土質柱状図を自動作図することができます。
ボーリング配置点の土質データはシビルソフト開発製の各種計算アプリケーションとも共用可能で、スパンの工事工法タイプ(開削工法・推進工法・シールド工法・トンネル工法・更生工法)により縦断図への作図を選択することも可能です。
画地要素の作成および面積計算法(三斜法・ヘロン法)による三角形分割が行なえ、画地の情報(地番名称・測点名称・測点記号など)および分割した三角形の情報が設定できます。
また、面積集計表の作成も自動で行なえます。
路線平面系統作成機能では、平面図や縦断図の作成のみならず、下水道設計に必須の各種構造図や仮設図をウィザードでの数値入力により簡単に作成することができます。
仮設土留工自動作図機能では、ウィザードでの数値入力や、弊社の「仮設土留工の計算」「ライナープレート立坑の計算」からエクスポートしたXMLファイルの読み込みにより、簡単に『鋼矢板立坑図』『鋼矢板開削土留工図』『円形ライナー立坑図』および『小判形ライナー立坑図』を作成することができます。
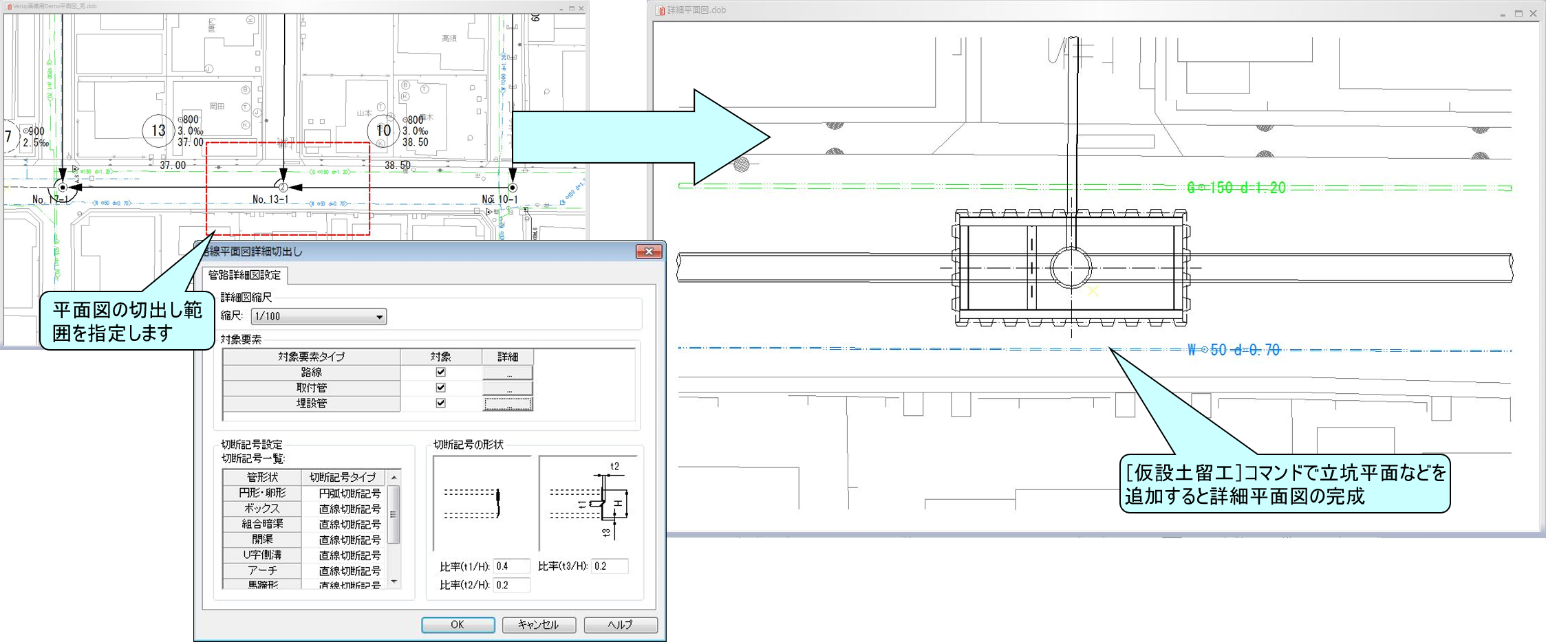
平面図内で切出し範囲を指定し、詳細図の縮尺、対象要素、切断記号などを設定することにより、平面図内に作成された地形図とともに、路線・マンホール・取付管・桝・地下埋設物の詳細形状を作図することができます。
[仮設土留工]lコマンドで立坑平面などを追加すると詳細平面図の完成です。
[管渠概算工事費]コマンドにより、管種・管径・土被り・工法ごとに設定した単価を参照し、平面図内に作成された路線の概算工事費の算出が可能です。
(結果はExcelに出力することも可能です。)
[CivilPlaza出力]コマンドにより、弊社の構造解析系アプリケーション「CivilPlazaシリーズ」と連動し、PipeRapidが平面図内に保持している構造解析に必要な基礎データの出力が可能です。
※2010年12月現在では『管の構造計算』に対応
平面図上での路線,取付管,および地下埋設物などの入力・編集は、各要素単位ではもちろん、一覧表上からも行うことができます。例えば路線・スパン・人孔などのデータを入力・編集する場合、各路線ごとによる詳細データ,および路線一覧による主要データのどちらの方法でも行うことができます。また一覧表上から各路線ごとの詳細データを開くこともできます。
データ入力は、個別の路線ごとのデータ入力のほかに、表形式の一覧データで入力や確認も出来ます。もちろん、データはリアルタイムで関連されている項目と同期されますので、初めから一覧表での入力も可能です。一覧表は、Excel同様のコピー、貼り付け、フィル機能を備えており、セル部分を部分的に指定してコピー、貼り付けが簡単にできますので、測量データがExcelである場合には一度に貼り付けできるなどの操作ができます。
計画設計、実施設計において、一連の作業で行うことができるほか、埋設管および計画管との交差はもちろん、地形図データの入力や取付管の接続を考慮しながら、検討段階での作業も簡単に行えます。面積計算も流域面積を固定し各路線に割り振るなどの機能も充実しています。
また、平面図を作図する必要が無い場合でも、管網図的な平面図を作図することで、必要な路線データの入力に替えることができますので、縦断図などの作成が容易かつスピーディーにできます。さらに、路線記号や取付管記号を工区や土被り区分などにより、設定した属性(線種・線色など)に表示できますので、表現力豊かな作図が容易に出来ます。
屋外排水設備システム」では、宅内に布設される屋外排水設備や道路上での桝引きの平面計画・縦断計画が可能です。
入力操作も、簡易的で違和感なく使用することが出来ます。
「屋外排水設備システム」は、本管計画と同様の高い計算能力と作図機能を有しており、さらに計画内容を取付管~本管計画に連動させることが可能です。
このため、縦断計画において、より詳細で正確な検討をトータル的に行うことができるシステムです。
桝設置位置を平面図上で、任意指定(位置指定・距離指定)や、強力なオフセット機能を使用することにより、簡単に屋外排水設備の平面計画が行えます。








動水位追跡システムでは、下水道管路施設の流下能力および、不等流計算による水面追跡の計算を行って、各路線・スパンの状況を確認できます。
検討結果を平面図上に色分けして表示したり、縦断図に動水位線を作図したりすることも可能で、検討結果の状況を容易に確認できます。
なお、下水道管渠の老朽化および、排水能力の向上などの検討においても、更生管の設定や区分も新設・既設・計画・撤去・存置とスパン毎に設定でき、平面図上で流下能力ごとに、路線を設定した属性(線種・線色)に表示できますので、より分かりやすい表現が可能です。(更生管は標準搭載機能です。)




標準逐次計算法、直接逐次計算法の2タイプから選択可能。また、追跡条件として、暗きょ(3タイプ)、開きょ(3タイプ)の条件設定が可能。
流下能力不足でも不等流計算により水面追跡を行い、スパン途中で水位が天端まで上昇した場合でも傾斜路を自動でかさ上げを行い水面追跡を続行することも可能。
計画および現況地盤高と水位の差を比較可能。
常流スパンの上下流の最低水位を限界水深、等流水深から選択可能。
4タイプの場合の計算条件を設定可能。
数量計算システムでは、Pipe
Rapidで設計計算されたデータをもとに数量計算を自動的に行うことができ、開削工事における「管渠布設工、土工、土留工、マンホール、副管工、取付管、路面復旧工、管渠延長調書」等を設定値をもとに計算して、工区別、補助および単独工事別にMicrosoft
Excel 2019/2021/for Microsoft
365でのデータとして出力することができます。
また、提供するExcelアドインやVBAにより、自作のExcelシートに数量計算システムからのデータをリンクさせて計算することができます。
すべて最新バージョンでの対応となります。
一般販売されたWindows OSに向けて開発されており、「Windows LTSB/LTSC」には対応しておりません。
Civil Plaza Rapidシリーズは64ビットアプリケーションですが、一部のモジュールは32ビット互換モードで動作します。
※ Civil Plazaは、株式会社シビルソフト開発の登録商標です。
※ Microsoft Windows 11 および Microsoft Office 2021 / Microsoft 365 は、米国マイクロソフト社の商標です。
| 機能 | {{item.version}} | |
|---|---|---|
| {{logitem}} | ✔ |
{{item.version}}